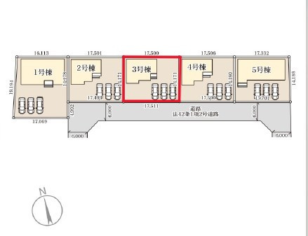
リーブルガーデン 第1小山中久喜 3号棟

2,890万円

栃木県小山市大字中久喜1161-3

水戸線「小田林」駅徒歩47分

水戸線「結城」駅徒歩53分

栃木県小山市「イオンモール小山前」バス停

価格
2,890万円
間取り/建物面積
4LDK/108.47㎡
所在地
栃木県小山市大字中久喜1161-3
築年
2025年9月(新築)
駐車
交通

水戸線小田林」駅 徒歩47分

水戸線結城」駅 徒歩53分

栃木県小山市「イオンモール小山前」バス停下車 徒歩12分

リーブルガーデン 第1小山中久喜 3号棟の基本情報

物件名
リーブルガーデン 第1小山中久喜 3号棟
価格
2,890万円
建物面積
108.47㎡
土地面積
75.04坪(248.07㎡)
築年月
2025年9月(新築)
総戸数
5戸
所在地
栃木県小山市大字中久喜1161-3
交通

水戸線小田林」駅 徒歩47分

水戸線結城」駅 徒歩53分

栃木県小山市「イオンモール小山前」バス停下車 徒歩12分

リーブルガーデン 第1小山中久喜 3号棟の詳細情報

設備条件
  • 閑静な住宅地
  • 建設住宅性能評価書付
  • 駐車3台可
設備(その他)
    -
駐車場/月額
有/-
土地権利
所有権
国土法届出
不要
用途地域
無指定
取引態様
一般媒介
引渡し
相談
備考
ぜひ一度見ていただきたい、「リーブルガーデン 第1小山中久喜 3号棟」です。こだわりのある方も多い、新築の戸建て物件となっております。省エネルギー対策により断熱性も高く、空調設備費も抑えられます。前面道路6m以上は確保しているので車の出し入れもラクラクです。小山市に特化したさくら住建でなら、きっとお客様がお求めの不動産を手に入れることができるでしょう。

リーブルガーデン 第1小山中久喜 3号棟のコメント(おすすめポイント)

ぜひ一度見ていただきたい、「リーブルガーデン 第1小山中久喜 3号棟」です。徒歩31分の場所に小山市立大谷北小学校があります。新築物件ですので、外観もキレイです。こだわりのある方も多い、新築の戸建て物件となっております。水戸線小田林周辺にある不動産の詳細が気になる方は、さくら住建までお気軽にご連絡くださいませ。スタッフ一同お問い合わせをお待ちしております。

リーブルガーデン 第1小山中久喜 3号棟で募集中の物件

  1. 32.81坪 (108.47㎡)

    2,890万円(38.51万円/坪)

周辺施設

  • ファミリーマート 小山中久喜店の画像

    コンビニエンスストア

    ファミリーマート 小山中久喜店

    280m(4分)

  • イオンモール小山の画像

    ショッピングセンター

    イオンモール小山

    627m(8分)

  • 認定こども園せいほう幼稚園の画像

    幼稚園

    認定こども園せいほう幼稚園

    1245m(16分)

  • 小山市立小山第三中学校の画像

    中学校

    小山市立小山第三中学校

    2095m(27分)

  • カワチ薬品 小山東店の画像

    ドラッグストア

    カワチ薬品 小山東店

    2394m(30分)

  • 小山市立大谷北小学校の画像

    小学校

    小山市立大谷北小学校

    2470m(31分)

近隣の物件

  1. 小山市城西1丁目

    4LDK (105.31㎡)

    2,999万円

  2. 小山市大字粟宮

    4LDK (102.67㎡)

    2,390万円

  3. 小山市城西1丁目

    4LDK (105.49㎡)

    3,058万円

  4. 小山市大字中久喜

    3LDK (96.88㎡)

    3,190万円

リーブルガーデン 第1小山中久喜 3号棟

お気軽にお問い合わせください

LINEからお問い合わせ 無料お問い合わせ

株式会社さくら住建

0120-009-396

9:00~17:00

(休:GW・夏季休暇・年末年始)