いろどりアイタウン佐野市中町 3号棟

1,790万円

栃木県佐野市中町

東武佐野線「葛生」駅徒歩23分

東武佐野線「多田」駅徒歩25分

東武佐野線「田沼」駅徒歩45分

価格
1,790万円
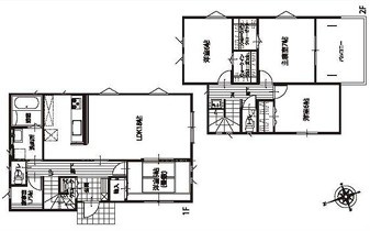
間取り/建物面積
4LDK/107.23㎡
所在地
栃木県佐野市中町
築年
2023年7月(築2年)
駐車
交通

東武佐野線葛生」駅 徒歩23分

東武佐野線多田」駅 徒歩25分

東武佐野線田沼」駅 徒歩45分

いろどりアイタウン佐野市中町 3号棟の基本情報

物件名
いろどりアイタウン佐野市中町 3号棟
価格
1,790万円
建物面積
107.23㎡
土地面積
64.59坪(213.53㎡)
築年月
2023年7月(築2年)
総戸数
3戸
所在地
栃木県佐野市中町
交通

東武佐野線葛生」駅 徒歩23分

東武佐野線多田」駅 徒歩25分

東武佐野線田沼」駅 徒歩45分

いろどりアイタウン佐野市中町 3号棟の詳細情報

設備条件
  • 閑静な住宅地
  • 駐車3台可
設備(その他)
    -
駐車場/月額
有/-
土地権利
所有権
国土法届出
不要
用途地域
第二種中高層住居専用
取引態様
一般媒介
引渡し
相談
備考
「いろどりアイタウン佐野市中町 3号棟」のここがイチオシ。徒歩20分の場所に佐野市立多田小学校があります。こちらの物件は中古戸建物件です。前面道路6m以上ある物件です。当社はお客様が不動産購入で失敗しないよう、しっかりとサポート致します。経験豊富なスタッフが丁寧に不動産情報のご案内を致しますので、安心してお任せ下さい。

いろどりアイタウン佐野市中町 3号棟のコメント(おすすめポイント)

東武佐野線葛生駅周辺物件:いろどりアイタウン佐野市中町 3号棟。こちらの物件は佐野市立多田小学校が1543m以内にあります。ニーズの高い中古の戸建て物件は、経済的なメリットも大きいです。築2年の物件です。ご希望の物件に出会ってほしいから、当社では数多くの不動産情報を取り揃えました。お客様の条件に合った不動産を紹介しています。ぜひ当社をご利用ください。

いろどりアイタウン佐野市中町 3号棟で募集中の物件

  1. 32.43坪 (107.23㎡)

    1,790万円(55.2万円/坪)

周辺施設

  • フジマート葛生店の画像

    スーパー

    フジマート葛生店

    1623m(21分)

  • ローソン 葛生北店の画像

    コンビニエンスストア

    ローソン 葛生北店

    3255m(41分)

  • 佐野市立 葛生義務教育学校の画像

    小学校

    佐野市立 葛生義務教育学校

    3275m(41分)

近隣の物件

  1. 佐野市富士見町

    4LDK (103.51㎡)

    1,890万円

  2. 佐野市富士見町

    4LDK (102.68㎡)

    1,890万円

  3. 佐野市葛生西1丁目

    4LDK (103.51㎡)

    2,190万円

いろどりアイタウン佐野市中町 3号棟

お気軽にお問い合わせください

LINEからお問い合わせ 無料お問い合わせ

株式会社さくら住建

0120-009-396

9:00~17:00

(休:GW・夏季休暇・年末年始)